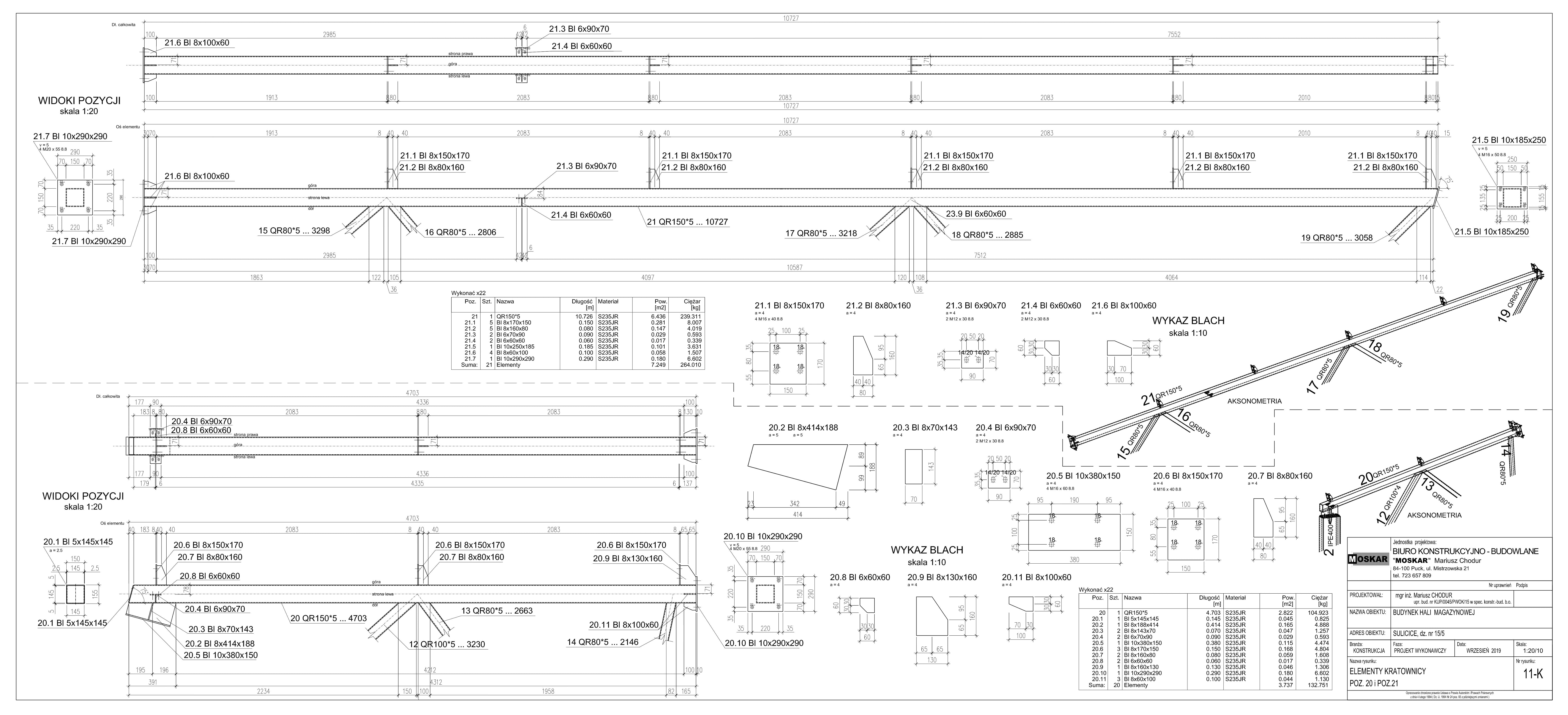
Obiekt zaprojektowano jako halę jednonawową o wymiarach rzutu poziomego 35×82 [m] oraz wysokości w kalenicy równej 12 metrów. Układ konstrukcyjny został zamodelowany w postaci ram portalowych w rozstawie co 6 metrów, ze słupami z profili dwuteowych oraz ryglem kratowym z rur kwadratowych.
Ciekawym rozwiązaniem jest to, że do oparcia części słupów ściany podłużnej i szczytowej wykorzystano oczep masywnych ścian oporowych, które utrzymują przyległy nasyp.





