Projekt obejmuje antresolę o powierzchni użytkowej 500 m².
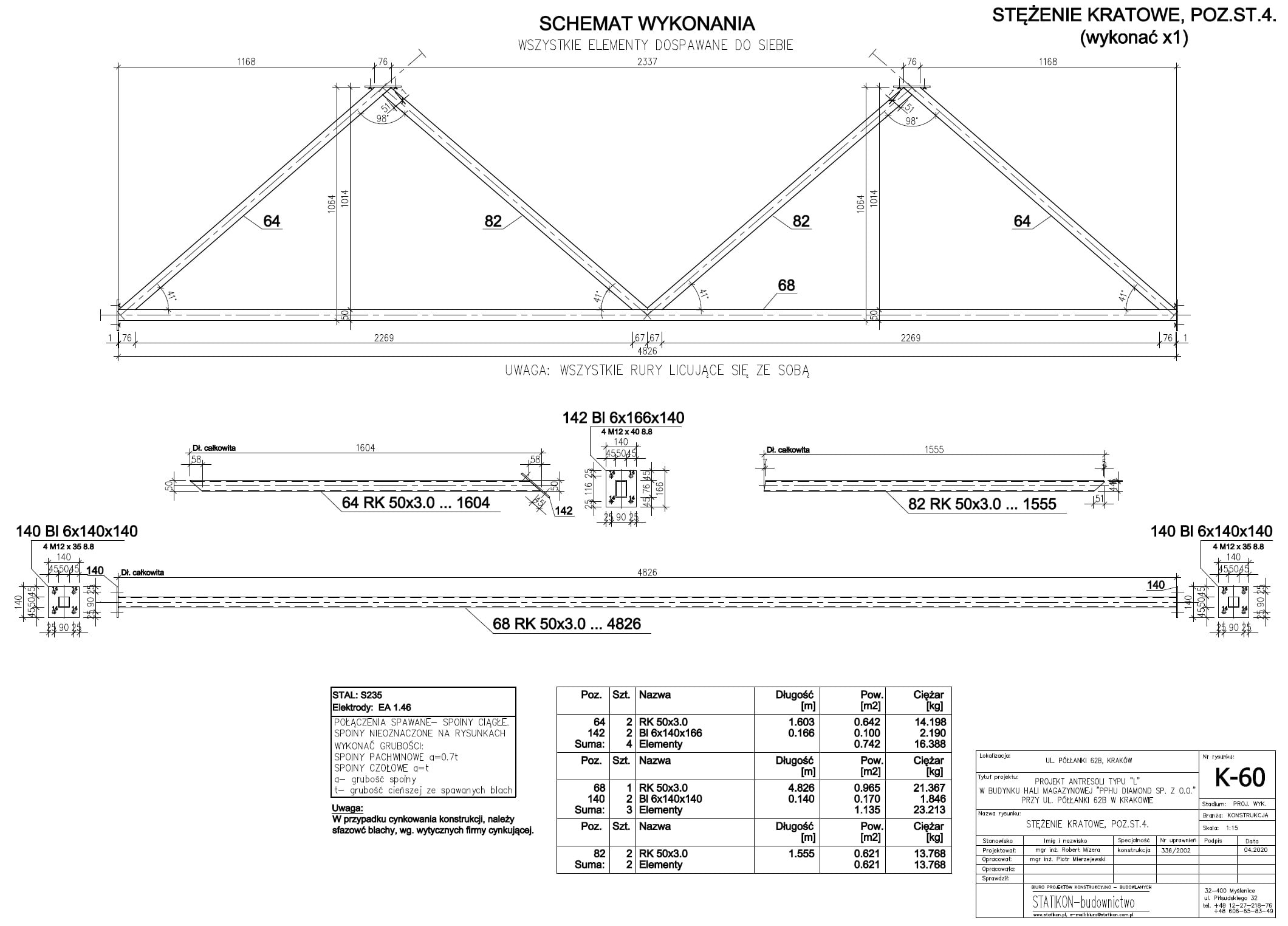
Układ konstrukcyjny tworzą ramy stalowe składające się z belek z dwuteowników równoległościennych IPE300 oraz słupów z dwuteowników szerokostopowych HEA160. Drugorzędne belki między głównymi ramami zostały wykonane z dwuteowników równoległościennych IPE240. Kratowe stężenia z profili kwadratowych zamkniętych Rk 50x50x3. Dodatkowo zaprojektowane zostały schody oraz barierki przemysłowe.
Słupy i schody mocowane do posadzki za pomocą kotew chemicznych. Wszystkie połączenia na budowie wykonano jako śrubowe.













