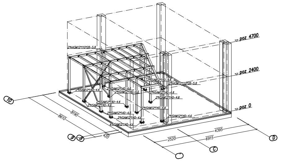
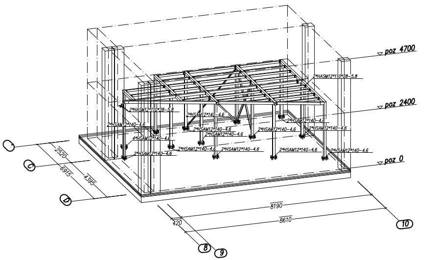
Zadanie polegało na zaprojektowaniu antresoli stalowej w budynku handlowo-usługowym. Antresola miała zwiększyć powierzchnię roboczą i umożliwić wykorzystanie przestrzeni pod salon kosmetyczno-fryzjerski. Z uwagi na dopuszczalne obciążenia, jakie można przyłożyć do istniejącego stropu, trzeba było dokładnie określić reakcje podporowe od projektowanych słupów stalowych.










