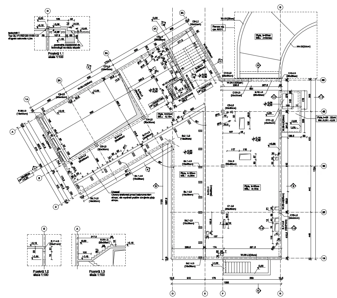
Budynek jednorodzinny, 3-kondygnacyjny, o pow. użytkowej 1200m2.
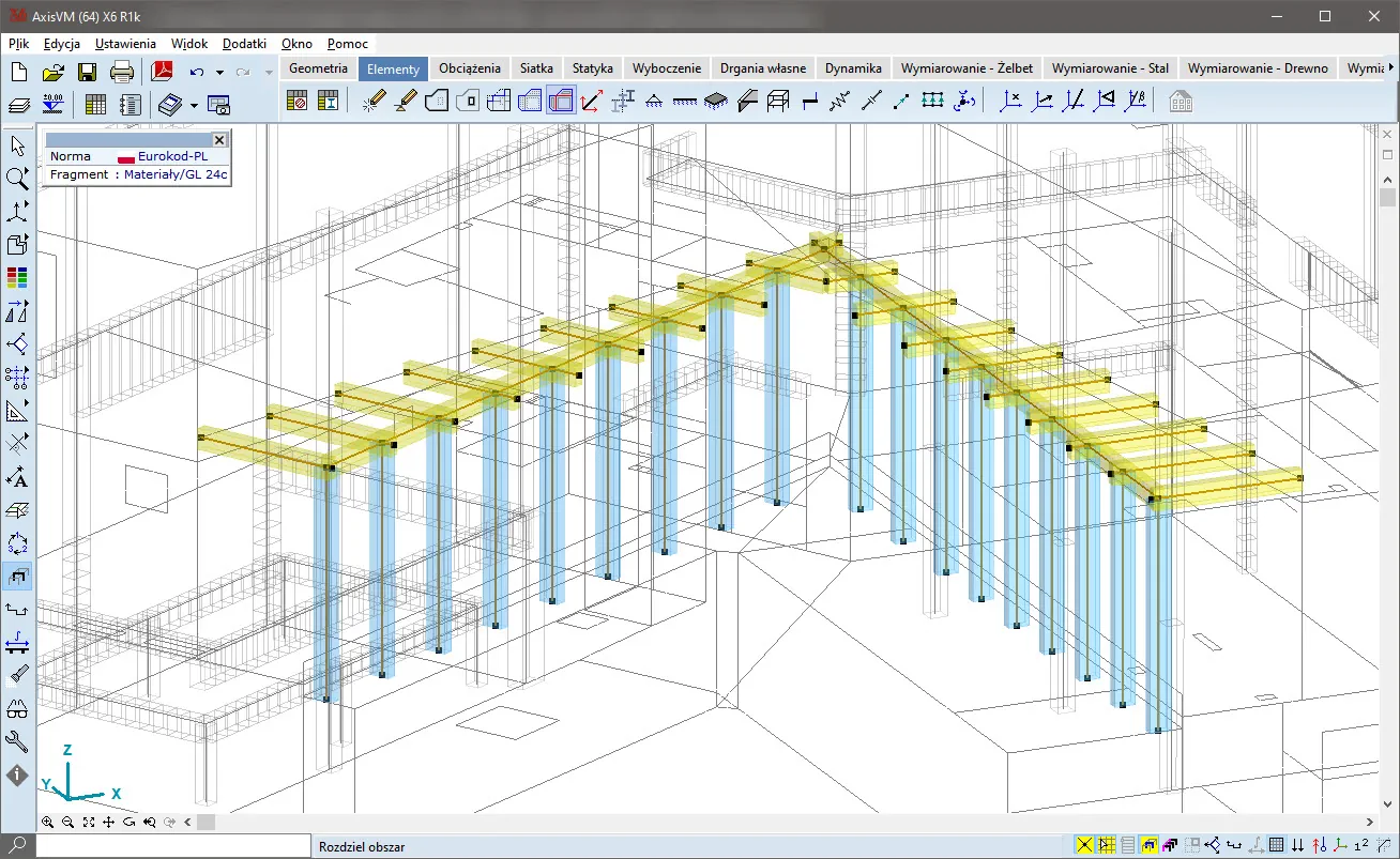
Konstrukcja nośna żelbetowa, stropy płaskie oparte na słupach i ścianach żelbetowych, posadowienie w postaci płyty fundamentowej. Konstrukcja tarasu w postaci układu ramowego z drewna klejonego.
Z uwagi na wysoki poziom wody gruntowej przyjęto konstrukcję kondygnacji podziemnej w technologii „białej wanny”. Obecność basenu rekreacyjnego w części budynku spowodowało znaczne zróżnicowanie obciążeń przekazywanych na grunt i konieczność wyrównania osiadań budynku.
W programie AxisVM wykonano model globalny budynku przy zastosowaniu elementów powłokowych i prętowych, a także wykonano modele płaskie poszczególnych płyt stropowych, dla których wykonano analizę nieliniową z uwzględnieniem efektów długotrwałych dla betonu.








